-
1
-
1
-
1
2265 Pacific Highway, Heatherbrae NSW 2324
1-Bedroom Granny Flat with Rural Views
Peaceful 1-Bedroom Granny Flat with Rural Views – Utilities Included
Private, Quiet Living Backing onto the Williams River
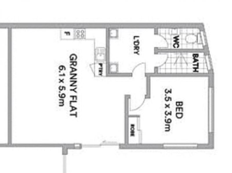
Set at the rear of a beautiful rural property, this spacious one-bedroom granny flat offers peace, privacy, and stunning views across open land that stretches to the Williams River. Tucked away from the main road, it's the perfect retreat for someone seeking a quiet lifestyle in a picturesque setting.
Features include:
- Water, electricity, and gas included in the rent
- Open-plan living, dining, and kitchen with air-conditioning for year-round comfort
- Modern kitchen with electric oven and gas cooktop
- Generous bedroom with built-in wardrobe and ceiling fan
- Walk-in shower room and separate toilet for added convenience
- Internal laundry
- Off-street parking beside the flat
- Secure access via shared front gates with the main residence
APPLY LINK: https://2apply.com.au/agency?n=OsbornGeorge
Internet Services:
The availability and adequacy of telephone and internet services are the sole responsibility of the tenant. Prospective tenants should conduct their own inquiries regarding connectivity before applying.
Inspection Information:
To inspect any of our available properties in person or via video tour, you must register your details by clicking the Contact Agent or Book Now button on the listing. If an open home is scheduled, you'll receive an invitation with the date and time.
If a video tour is available, the link will be sent to you via email or text after registering.
Private, Quiet Living Backing onto the Williams River
Set at the rear of a beautiful rural property, this spacious one-bedroom granny flat offers peace, privacy, and stunning views across open land that stretches to the Williams River. Tucked away from the main road, it's the perfect retreat for someone seeking a quiet lifestyle in a picturesque setting.
Features include:
- Water, electricity, and gas included in the rent
- Open-plan living, dining, and kitchen with air-conditioning for year-round comfort
- Modern kitchen with electric oven and gas cooktop
- Generous bedroom with built-in wardrobe and ceiling fan
- Walk-in shower room and separate toilet for added convenience
- Internal laundry
- Off-street parking beside the flat
- Secure access via shared front gates with the main residence
APPLY LINK: https://2apply.com.au/agency?n=OsbornGeorge
Internet Services:
The availability and adequacy of telephone and internet services are the sole responsibility of the tenant. Prospective tenants should conduct their own inquiries regarding connectivity before applying.
Inspection Information:
To inspect any of our available properties in person or via video tour, you must register your details by clicking the Contact Agent or Book Now button on the listing. If an open home is scheduled, you'll receive an invitation with the date and time.
If a video tour is available, the link will be sent to you via email or text after registering.
